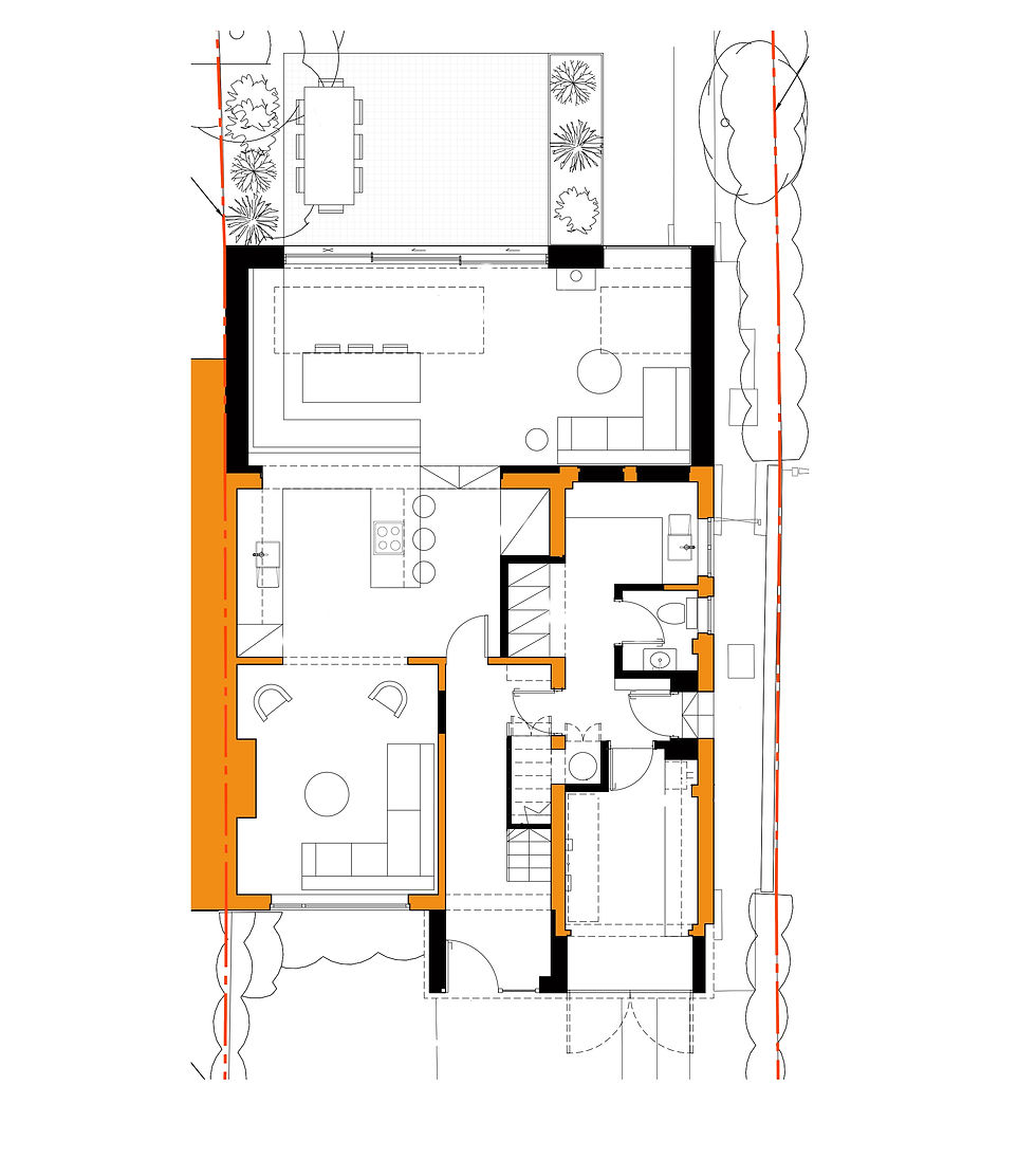
Our clients, Will and Hattie bought a run down 1960's semi-detached house on the edge of Dorchester and wanted to undertake a major eco-refit plus a new garden extension. The brief for the new extension was to create something which had an element of surprise at the rear of an otherwise very ordinary semi-detached house. The geometry of the new extension evolved as a roof shape which could maximise the ceiling heights in the new spaces whilst working with the layout of the existing upper floor windows. The choice of clay peg tiles was a nod towards the clay peg tiles that have been used as cladding to elements of the original front façade.
Will undertook the entire project as a self build and built much of the new extension himself including the carpentry for the new exposed glulam structure and also the joinery plus the kitchen.
The improvements to the house incorporated a range of sustainable upgrades to improve the thermal performance including a whole house mechanical ventilation system with heat recovery and a new Photovoltaic array on the south facing roof .
Weatherbury Way, Dorchester, Dorset
Our clients, Will and Hattie bought a run down 1960's semi-detached house on the edge of Dorchester and wanted to undertake a major eco-refit plus a new garden extension. The brief for the new extension was to create something which had an element of surprise at the rear of an otherwise very ordinary semi-detached house. The geometry of the new extension evolved as a roof shape which could maximise the ceiling heights in the new spaces whilst working with the layout of the existing upper floor windows. The choice of clay peg tiles was a nod towards the clay peg tiles that have been used as cladding to elements of the original front façade.
Will undertook the entire project as a self build and built much of the new extension himself including the carpentry for the new exposed glulam structure and also the joinery plus the kitchen.
The improvements to the house incorporated a range of sustainable upgrades to improve the thermal performance including a whole house mechanical ventilation system with heat recovery and a new Photovoltaic array on the south facing roof .

Ground floor plan


Section





Weatherbury Way, Dorchester, Dorset
Weatherbury Way, Dorchester, Dorset

Ground floor plan

Section











